Wohnen am Campus II








STÄDTEBAULICHE ZIELSETZUNG
Die städtebauliche Konzeption des vorliegenden Entwurfes hat zwei klare Leitideen:
RÄUMLICHE ARTIKULATION
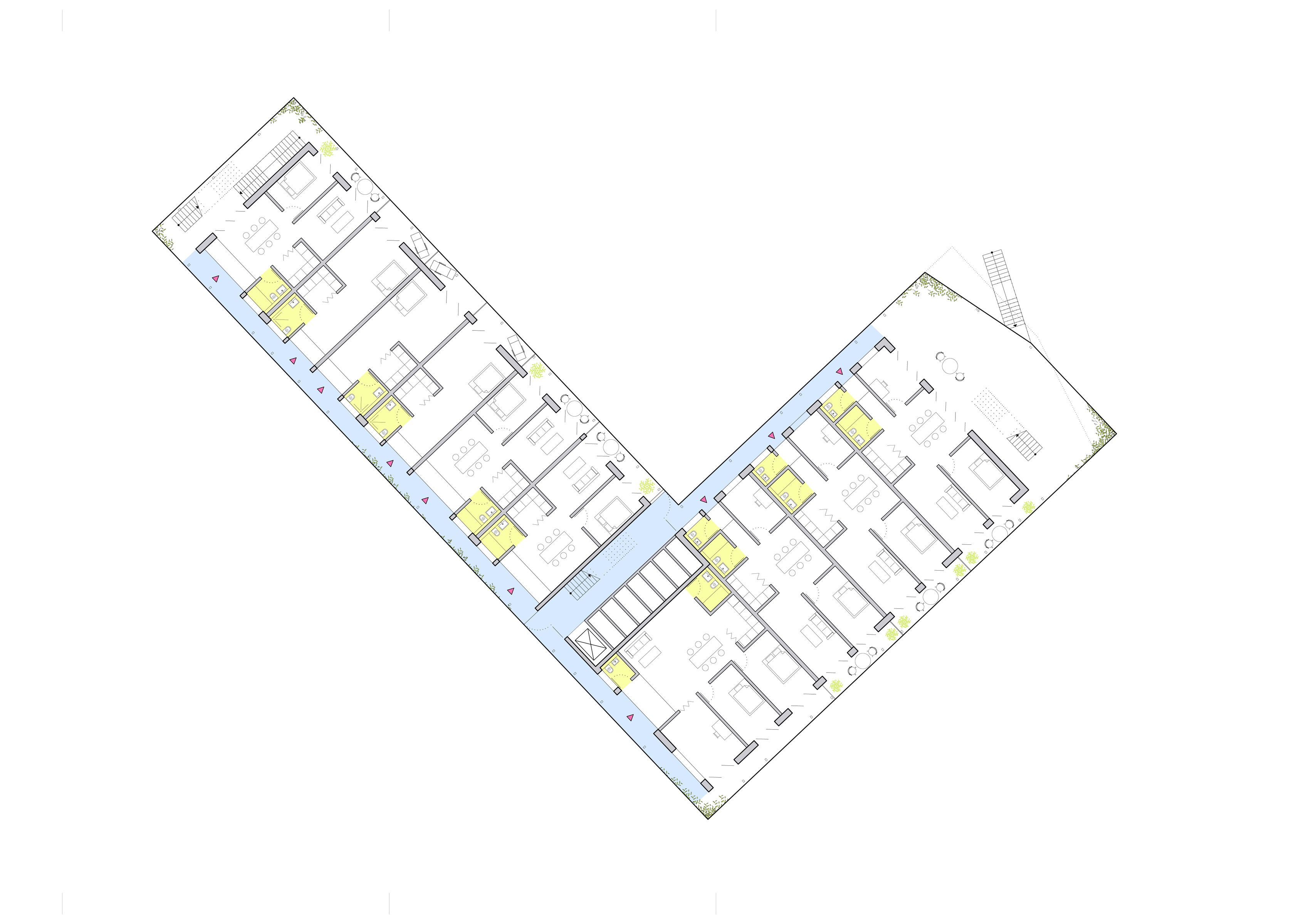
Die das Quartier umgebende Bebauung zeichnet sich durch eine sehr lose und gestreute Baukörperstruktur aus. Aufgrund dieser nicht vorhandenen räumlichen Fassung und dem Einfluss von zahlreichen externen Lärmquellen (Gewerbegebiet, Tramlinie, Hermann-Dorner-Allee) geht der vorliegende Entwurf von der Idee einer Blockstruktur aus. Die L-förmigen Baukörper definieren das Quartier nach außen mit einer klaren Kante. Ihre innenliegenden, breiteren Kopfbauten strukturieren den Innenraum des Ensembles.
VERNETZUNG DES QUARTIERS
Der Radweg durchquert das Quartier zentral und wird als aktive Achse aufgegriffen. Er verbindet das Quartier sowohl mit dem Landschaftspark Johannistal als auch mit dem Zentrum des Campus Adlershof, das in dieser Achse visuell durch den Trudelturm markiert wird. Intern dient der Humboldt-Weg als Verteiler zwischen den inneren Hofräumen und erhält dadurch eine hohe Präsenz im Quartier. Die Außenkanten des Ensembles werden in regelmäßigen Abständen geöffnet, und es werden visuelle und räumliche Beziehungen zu benachbarten Quartieren und dem Landschaftspark erzeugt.
HÖFE + NACHBARSCHAFT
Im Inneren entsteht eine Raumsequenz, die zu beiden Seiten an den Humboldt-Weg anknüpft. Nördlich entstehen fließende, landschaftliche Räume mit einem großzügigen
Waldspielplatz. Südlich sind die Räume klarer und geometrischer gefasst. Hier befindet sich neben dem öffentlichen Platz eine große Spielwiese. Die Köpfe der
Gebäude bieten im Erdgeschoss öffentliche und gemeinschaftliche Nutzungen an. Zu diesen Nutzungen gehört im Norden eine Kita, ein Nachbarschaftsraum und diverse Gemeinschaftsflächen. Große gemeinschaftlich nutzbare Terrassen führen über Freitreppen direkt in die Innenhöfe. An dem kleinen Quartiersplatz stehen mehrere
Einzelhandelsflächen zur Verfügung. Hier könnten ein lokaler "Convenience Store" und ein Café entstehen.
TYPOLOGIE + AUSRICHTUNG
Das Ensemble besteht aus L-förmigen Baukörpern, die einen schlanken Flügel (12m) und einen kurzen Kopfbau (16m) besitzen. Dieser Gebäudetyp wurde nach folgenden Zielen entwickelt:
Die städtebauliche Konzeption des vorliegenden Entwurfes hat zwei klare Leitideen:
- Räumliche Fassung des Quartiers und Bildung eines geschützten Innenraumes. Es entsteht ein eigenständiges Quartier mit einer eigenen Identität als auch eine Abschirmung zu den umgebenden Lärmquellen. Der landschaftliche Moment des vorhandenen Kiefernwaldes prägt den Charakter der großzügigen Außenräume.
- Vernetzung mit den Nachbarquartieren über die gezielte Öffnung der Außenkanten und Herstellung von räumlichen Beziehungen mit der Umgebung, u.a. durch Begegnungszonen entlang der angrenzenden Straßen.
RÄUMLICHE ARTIKULATION
Die das Quartier umgebende Bebauung zeichnet sich durch eine sehr lose und gestreute Baukörperstruktur aus. Aufgrund dieser nicht vorhandenen räumlichen Fassung und dem Einfluss von zahlreichen externen Lärmquellen (Gewerbegebiet, Tramlinie, Hermann-Dorner-Allee) geht der vorliegende Entwurf von der Idee einer Blockstruktur aus. Die L-förmigen Baukörper definieren das Quartier nach außen mit einer klaren Kante. Ihre innenliegenden, breiteren Kopfbauten strukturieren den Innenraum des Ensembles.
VERNETZUNG DES QUARTIERS
Der Radweg durchquert das Quartier zentral und wird als aktive Achse aufgegriffen. Er verbindet das Quartier sowohl mit dem Landschaftspark Johannistal als auch mit dem Zentrum des Campus Adlershof, das in dieser Achse visuell durch den Trudelturm markiert wird. Intern dient der Humboldt-Weg als Verteiler zwischen den inneren Hofräumen und erhält dadurch eine hohe Präsenz im Quartier. Die Außenkanten des Ensembles werden in regelmäßigen Abständen geöffnet, und es werden visuelle und räumliche Beziehungen zu benachbarten Quartieren und dem Landschaftspark erzeugt.
HÖFE + NACHBARSCHAFT
Im Inneren entsteht eine Raumsequenz, die zu beiden Seiten an den Humboldt-Weg anknüpft. Nördlich entstehen fließende, landschaftliche Räume mit einem großzügigen
Waldspielplatz. Südlich sind die Räume klarer und geometrischer gefasst. Hier befindet sich neben dem öffentlichen Platz eine große Spielwiese. Die Köpfe der
Gebäude bieten im Erdgeschoss öffentliche und gemeinschaftliche Nutzungen an. Zu diesen Nutzungen gehört im Norden eine Kita, ein Nachbarschaftsraum und diverse Gemeinschaftsflächen. Große gemeinschaftlich nutzbare Terrassen führen über Freitreppen direkt in die Innenhöfe. An dem kleinen Quartiersplatz stehen mehrere
Einzelhandelsflächen zur Verfügung. Hier könnten ein lokaler "Convenience Store" und ein Café entstehen.
TYPOLOGIE + AUSRICHTUNG
Das Ensemble besteht aus L-förmigen Baukörpern, die einen schlanken Flügel (12m) und einen kurzen Kopfbau (16m) besitzen. Dieser Gebäudetyp wurde nach folgenden Zielen entwickelt:
- typologische Anpassungsfähigkeit und räumliche Vielfalt
- architektonische + visuelle Einheit
- baukonstruktive Standardisierung
- Optimierung des Lärmschutzes
Kategorie Eingeladener Wettbewerb
Ort Campus II, Berlin-Adlershof, Deutschland
Auftraggeber HOWOGE Wohnungsbaugesellschaft mbH
Entwurf STUDIO MARS Berlin (MARS Architekten)
Team Yu Kamijo, Juliette Saloux
Fläche 27.000m² Grundstücksfläche
Jahr 2016
Leistungsphasen Wettbewerb
Projektbeteiligte SIMA | BREER (Landschaftsarchitektur)
Ort Campus II, Berlin-Adlershof, Deutschland
Auftraggeber HOWOGE Wohnungsbaugesellschaft mbH
Entwurf STUDIO MARS Berlin (MARS Architekten)
Team Yu Kamijo, Juliette Saloux
Fläche 27.000m² Grundstücksfläche
Jahr 2016
Leistungsphasen Wettbewerb
Projektbeteiligte SIMA | BREER (Landschaftsarchitektur)