Stadt und Land TYPENHAUS



















In Zusammenarbeit mit der Stadt und Land Wohnbauten GmbH wurde ein Typenwohnhaus entwickelt, das zeitnah als effektive und vielfältige Antwort auf die Situation des Berliner Wohnungsmarktes eingesetzt werden kann.
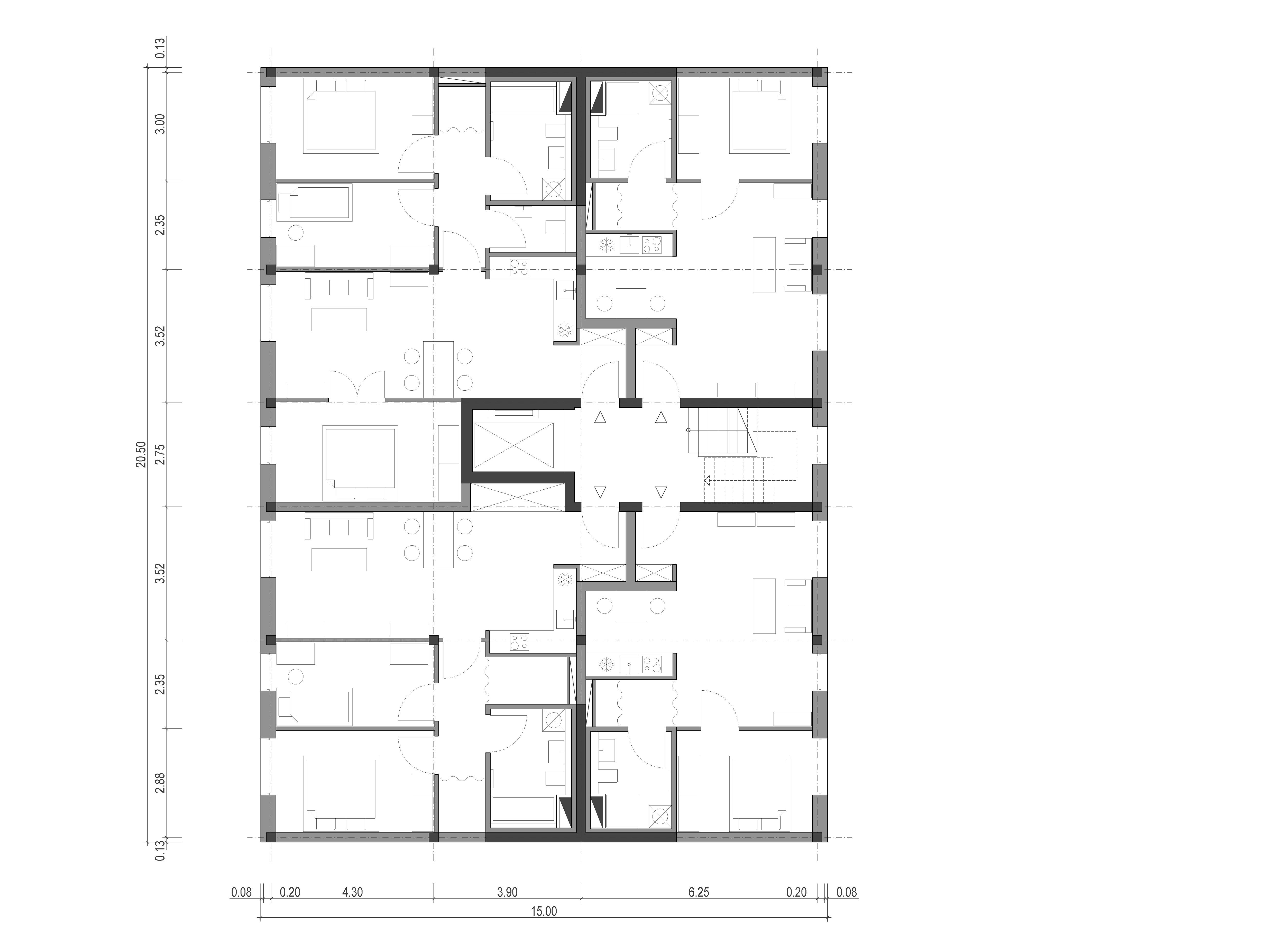
Das Typenhaus erzielt eine maximale Flächeneffizienz und folgt klar den Grundsätzen des kostengünstigen und schnellen Bauens, um möglichst viel Wohnraum in kurzer Zeit zu geringen Mietpreisen zu erzeugen. Eine hohe Wohnqualität, Vielfalt und Identifikationsfähigkeit mit den zu errichtenden Typenbauten bleiben dabei das oberste Ziel der Gestaltung.
Die folgende Vielfalt von Anforderungen und Zielsetzungen haben die Planung eng begleitet und Zielkonflikte zu Synergien überführt:
Reih- und Stapelbarkeit standardisierter Gebäudesegmente
Variable Geschossigkeit (III-VIII) bei gleicher Bauweise
Maximale Flächeneffizienz (75%-80%)
Gestalterische Vielfalt trotz standardisierter Typenbauweise
Robuste und flexible Bauweise
Vielfältige Kombinatorik der Gebäudesegmente
Adaptiver Wohnungsmix von 1- bis 4-Zimmer Wohnungen
100%ige Förderfähigkeit der Wohnungen
Hohe Flexibilität durch vielfältige Zusammenlegung von Wohneinheiten
Nord/Süd und Ost/West Ausrichtung für eine optimale Belichtung
Ecklösungen für eine geschlossene städtische Bauweise
Adaptiv gestaltbare Erdgeschosszonen als städtische Begegnungszone
Das Typenhaus erzielt eine maximale Flächeneffizienz und folgt klar den Grundsätzen des kostengünstigen und schnellen Bauens, um möglichst viel Wohnraum in kurzer Zeit zu geringen Mietpreisen zu erzeugen. Eine hohe Wohnqualität, Vielfalt und Identifikationsfähigkeit mit den zu errichtenden Typenbauten bleiben dabei das oberste Ziel der Gestaltung.
Die folgende Vielfalt von Anforderungen und Zielsetzungen haben die Planung eng begleitet und Zielkonflikte zu Synergien überführt:
Reih- und Stapelbarkeit standardisierter Gebäudesegmente
Variable Geschossigkeit (III-VIII) bei gleicher Bauweise
Maximale Flächeneffizienz (75%-80%)
Gestalterische Vielfalt trotz standardisierter Typenbauweise
Robuste und flexible Bauweise
Vielfältige Kombinatorik der Gebäudesegmente
Adaptiver Wohnungsmix von 1- bis 4-Zimmer Wohnungen
100%ige Förderfähigkeit der Wohnungen
Hohe Flexibilität durch vielfältige Zusammenlegung von Wohneinheiten
Nord/Süd und Ost/West Ausrichtung für eine optimale Belichtung
Ecklösungen für eine geschlossene städtische Bauweise
Adaptiv gestaltbare Erdgeschosszonen als städtische Begegnungszone
Status Abgeschlossen
Kategorie Studie / Forschung
Ort noch kein Standort
Auftraggeber STADT UND LAND Wohnbauten-Gesellschaft mbH
Entwurf STUDIO MARS Berlin (MARS Architekten)
Projektteam Björn Böök, Goran Vukcevic, Mateusz Kiercz
Visualisierung Lukas Specks
Jahr 2016
Leistungsphasen LPH 1-3 Teilleistungen, Leitdetails, Kosten
Projektbeteiligte Janowski Beratende Ingenieure (TGA), Lossen Ingenieure (Tragwerk, Brandschutz, Schallschutz), Treibhaus / Lavaland (Landschaftsarchitektur), Prof. Bernd Bötzel, DU Diederichs (Projekt-management)
Kategorie Studie / Forschung
Ort noch kein Standort
Auftraggeber STADT UND LAND Wohnbauten-Gesellschaft mbH
Entwurf STUDIO MARS Berlin (MARS Architekten)
Projektteam Björn Böök, Goran Vukcevic, Mateusz Kiercz
Visualisierung Lukas Specks
Jahr 2016
Leistungsphasen LPH 1-3 Teilleistungen, Leitdetails, Kosten
Projektbeteiligte Janowski Beratende Ingenieure (TGA), Lossen Ingenieure (Tragwerk, Brandschutz, Schallschutz), Treibhaus / Lavaland (Landschaftsarchitektur), Prof. Bernd Bötzel, DU Diederichs (Projekt-management)