Büroumbau - Abschnitt 1







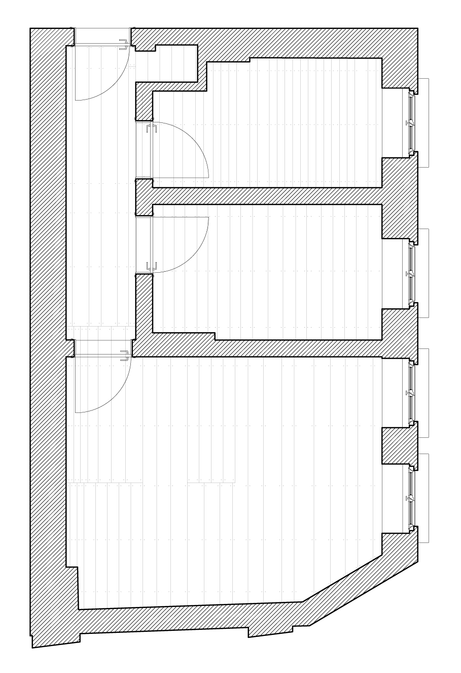
Die Büroräume mit einer Nutzfläche von 55m² befinden sich im Hochparterre des Seitenflügels eines Berliner Mietshauses in Berlin-Tiergarten. Die einzelnen Zimmer wurden durch gezielte Wandöffnungen entlang der Fassade zu einem zusammenhängenden Arbeitsbereich verbunden. Die Oberflächen wurden einheitlich weiß behandelt und Einzelobjekte farbig gestaltet. So entstehen ein anregender Hintergrund sowie eine inspirierende Atmosphäre für Bürotätigkeiten und Besprechungen. Das neu hinzugefügte Bad ist als eingestellter Kern konzipiert. Anstatt Wand, Decke und Boden mit Fliesen zu versehen, wurde die gesamte Oberfläche mit Epoxidharz-Zementspachtel versiegelt und in einem grün gestrichen. Im Jahr 2011 wurde das Büro mit einem im Bauabschnitt 2 realisierten Büro im 1. Geschoss über eine interne Treppe verbunden.
Status Fertiggestellt
Kategorie Innenraum, Umbau
Ort Berlin, Deutschland
Auftraggeber Privat
Entwurf STUDIO MARS Berlin (MARS Architekten)
Fläche 55m²
Budget 25.000 Euro
Jahr 2007
Leistungsphasen LPH 1-9
Projektbeteiligte Dipl.-Ing. Peter Westphal (Tragwerk)
Kategorie Innenraum, Umbau
Ort Berlin, Deutschland
Auftraggeber Privat
Entwurf STUDIO MARS Berlin (MARS Architekten)
Fläche 55m²
Budget 25.000 Euro
Jahr 2007
Leistungsphasen LPH 1-9
Projektbeteiligte Dipl.-Ing. Peter Westphal (Tragwerk)