Aufstockung Bergstraße
Das Grundstück befindet sich westlich des nahe gelegenen großen Wannsees. Die eingeschossige Dpoppelhaushälfte aus dem Jahr 1959 wurde innerhalb des Siedlungsgebietes mehrfach errichtet und verkörpert durch seine einfache und bescheidene Erscheinung ein typisches Einfamilienhaus aus der Nachkriegsmoderne.
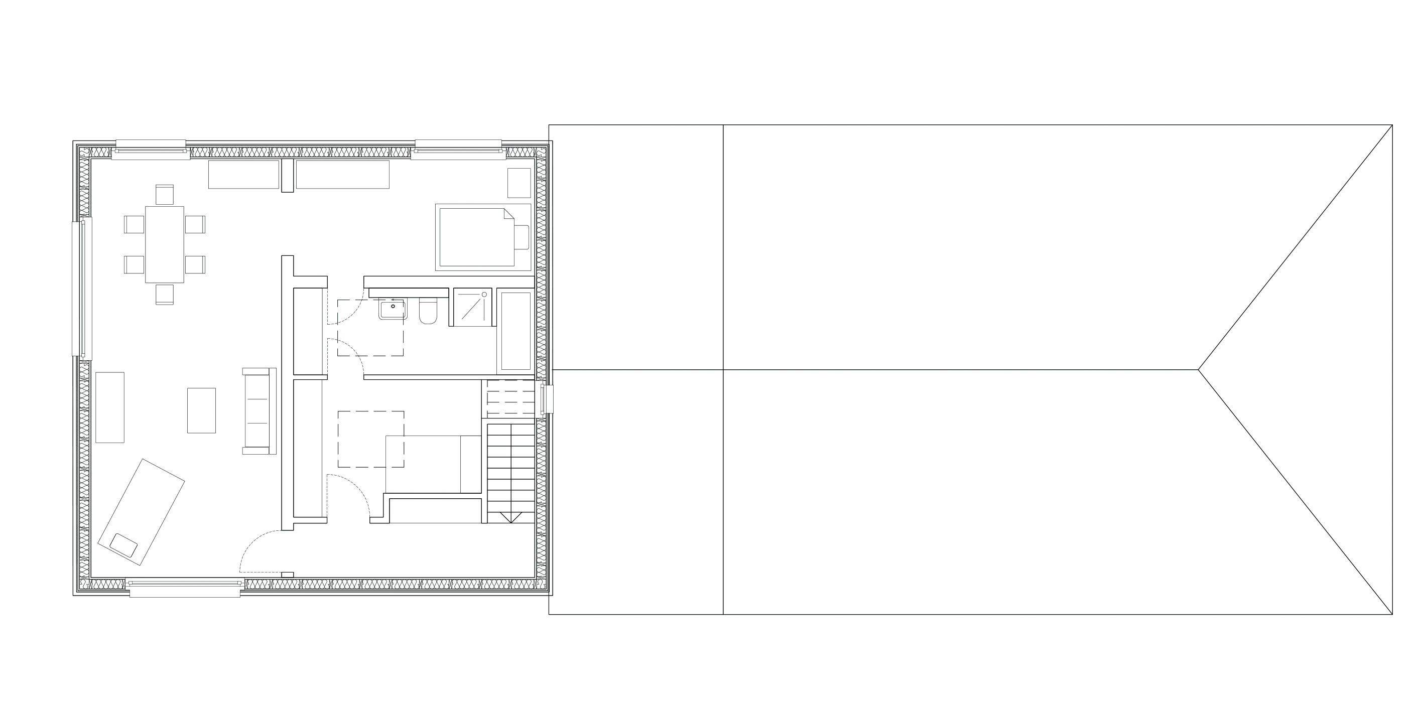
Die Entwurfsaufgabe bestand darin, das vorhandene Reihenhaus durch eine eingeschossige Aufstockung räumlich zu erweitern und ihre Errichtung durch einen hohen Anteil baulicher Vorfabriaktion zu vereinfachen. Die vorhandene Gründungssituation des Wohnhauses erforderte eine leichte Bauweise. Zugleich sollten nachhaltige Baustoffe eingesetzt werden und zugleich der Anteil der nutzbaren Wohnfläche maximiert werden. Vorgefertigte Wandsegmente in Holzsänderbauweise erfüllten die gestellten Anforderungen.
Auf den Einsatz mineralischer Putzsysteme wurde bewußt verzichtet. Die sichtbare Holzverlkeidung kontrastiert den massiven Erdgeschosssockel und assoziiert jene hybride Bauweise, wie sie bei alpinen Bauernhöfen vorzufinden ist.
Die Entwurfsaufgabe bestand darin, das vorhandene Reihenhaus durch eine eingeschossige Aufstockung räumlich zu erweitern und ihre Errichtung durch einen hohen Anteil baulicher Vorfabriaktion zu vereinfachen. Die vorhandene Gründungssituation des Wohnhauses erforderte eine leichte Bauweise. Zugleich sollten nachhaltige Baustoffe eingesetzt werden und zugleich der Anteil der nutzbaren Wohnfläche maximiert werden. Vorgefertigte Wandsegmente in Holzsänderbauweise erfüllten die gestellten Anforderungen.
Auf den Einsatz mineralischer Putzsysteme wurde bewußt verzichtet. Die sichtbare Holzverlkeidung kontrastiert den massiven Erdgeschosssockel und assoziiert jene hybride Bauweise, wie sie bei alpinen Bauernhöfen vorzufinden ist.
Status designing planning
Kategorie Umbau, Aufstockung
Ort Berlin-Wannsee, Deutschland
Auftraggeber Privat
Entwurf STUDIO MARS Berlin (MARS Architekten)
Team Katrin Bozeniec, Alexander Brauer
Fläche 225 m² BGF
Budget 330.000 Euro
Jahr 2020
Leistungsphasen 1-4
Projektbeteiligte Structura Ingenieure
Kategorie Umbau, Aufstockung
Ort Berlin-Wannsee, Deutschland
Auftraggeber Privat
Entwurf STUDIO MARS Berlin (MARS Architekten)
Team Katrin Bozeniec, Alexander Brauer
Fläche 225 m² BGF
Budget 330.000 Euro
Jahr 2020
Leistungsphasen 1-4
Projektbeteiligte Structura Ingenieure
